Zach & Katie
Munster, IN
9,900 SF
From complex projects to tight deadlines,our construction drawing expertise is here to support architects every step of the way!
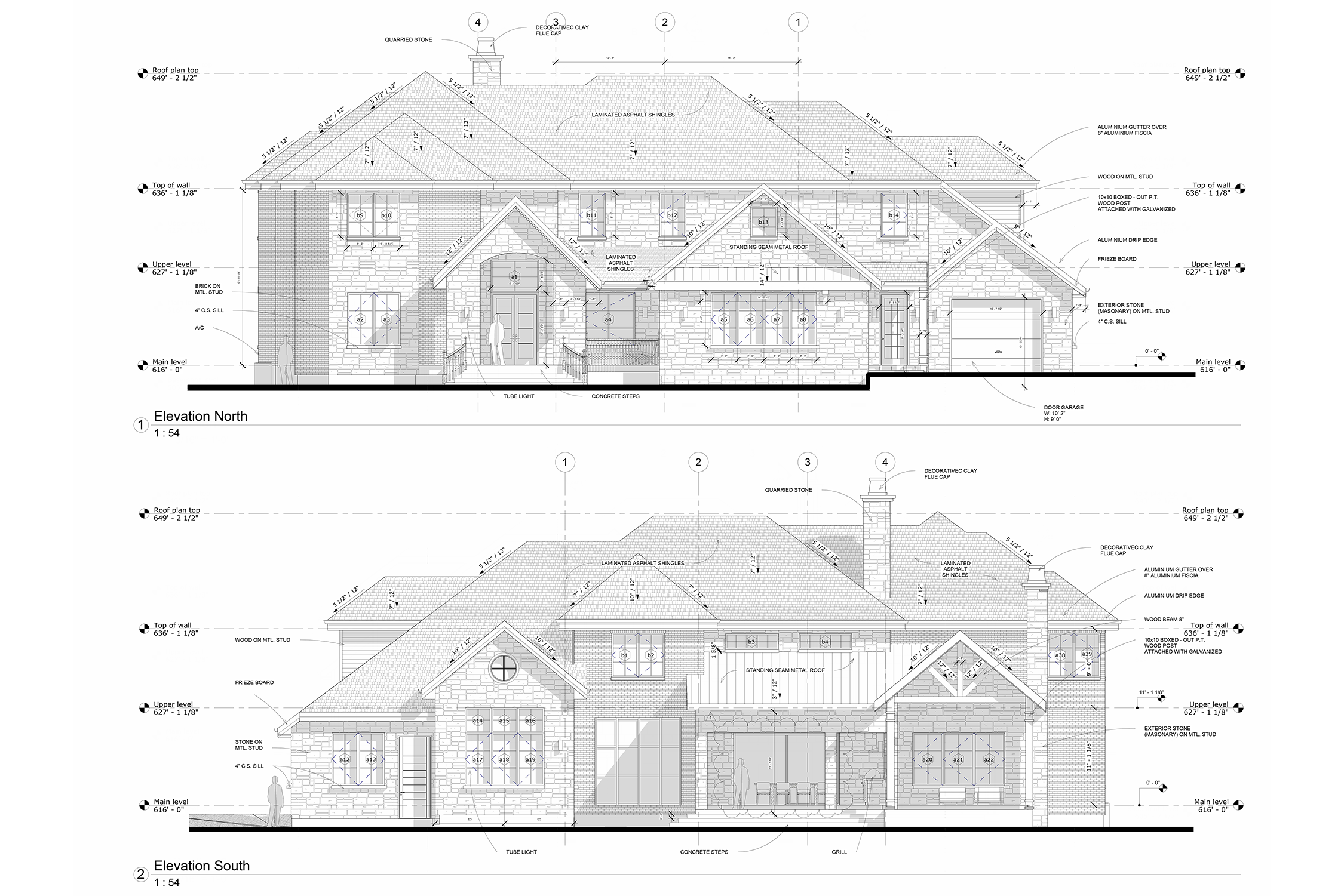
A home designed from the ground up to blend Classic Style balancing comfort and elegance.
Tailored to fit the unique characteristics of its Munster neighborhood this residence reach the standard for refined living in the community.
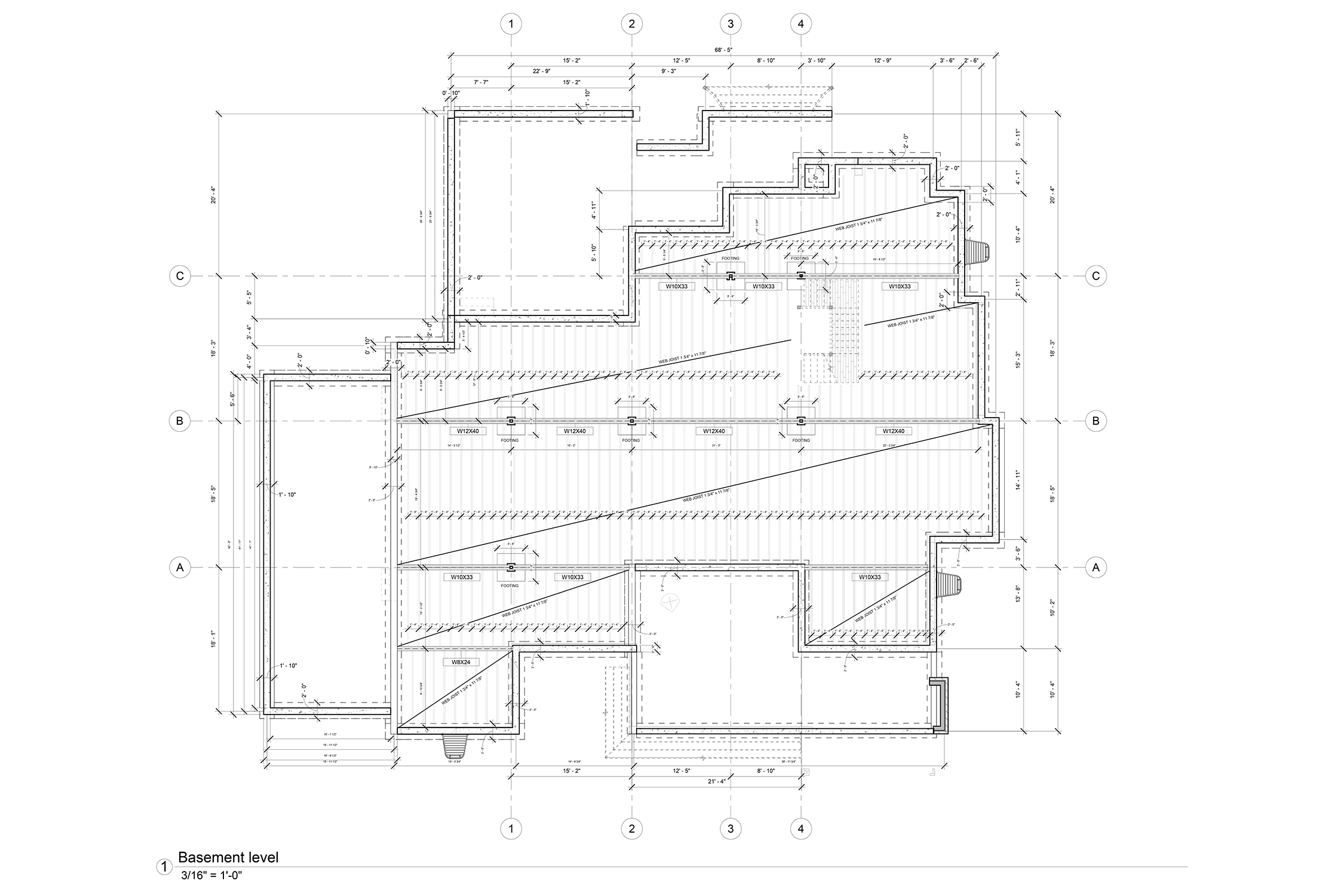
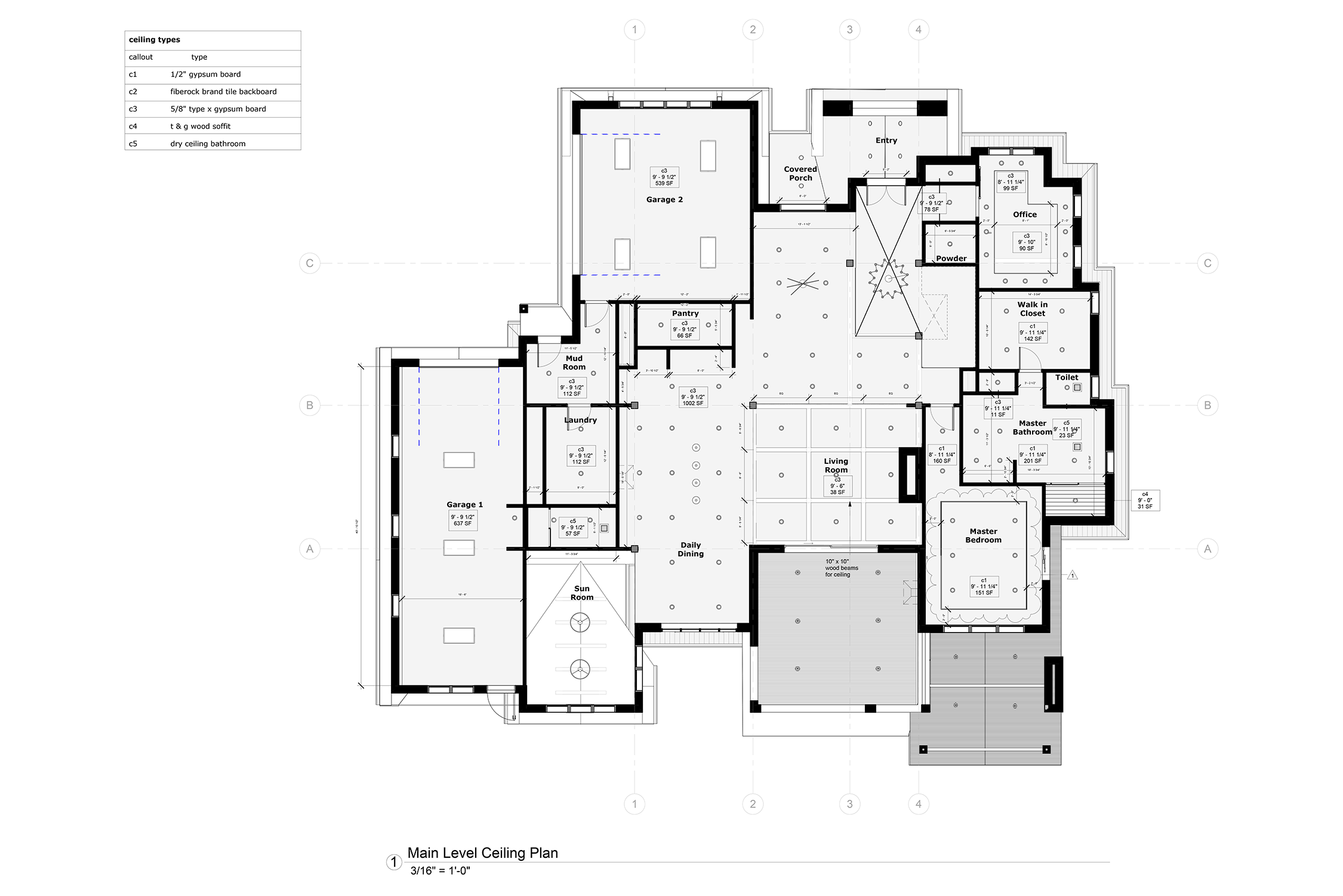
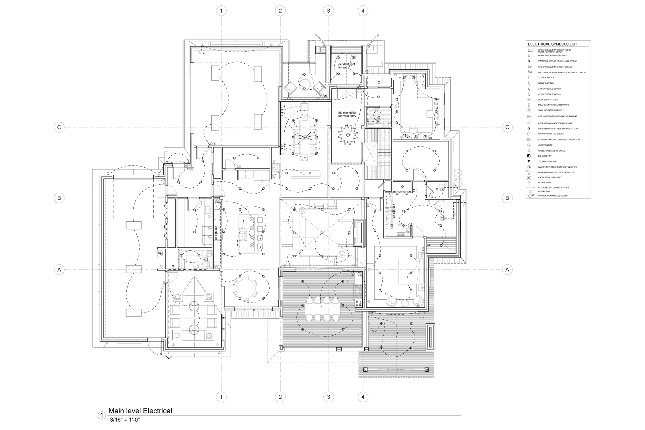
From an idea in the client’s mind to a rough hand sketch, we collaborated closely to shape their custom home. Through back-and-forth discussions, we refined every detail to fit their unique vision. We took care of everything, right up to delivering the full permit set.
Your creative vision, our technical expertise.
Let’s bring your residential projects to life!
Take a look at our latest projects!
EXCEPTIONAL
INNOVATIVE
STRESS-FREE






