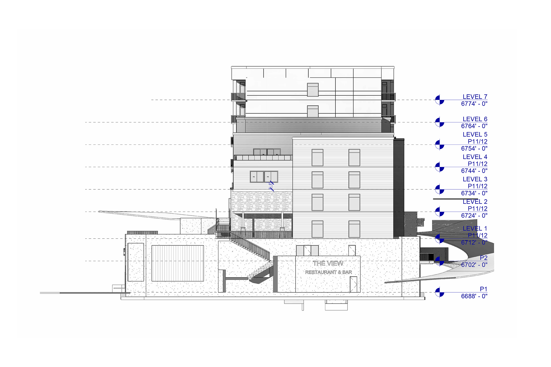
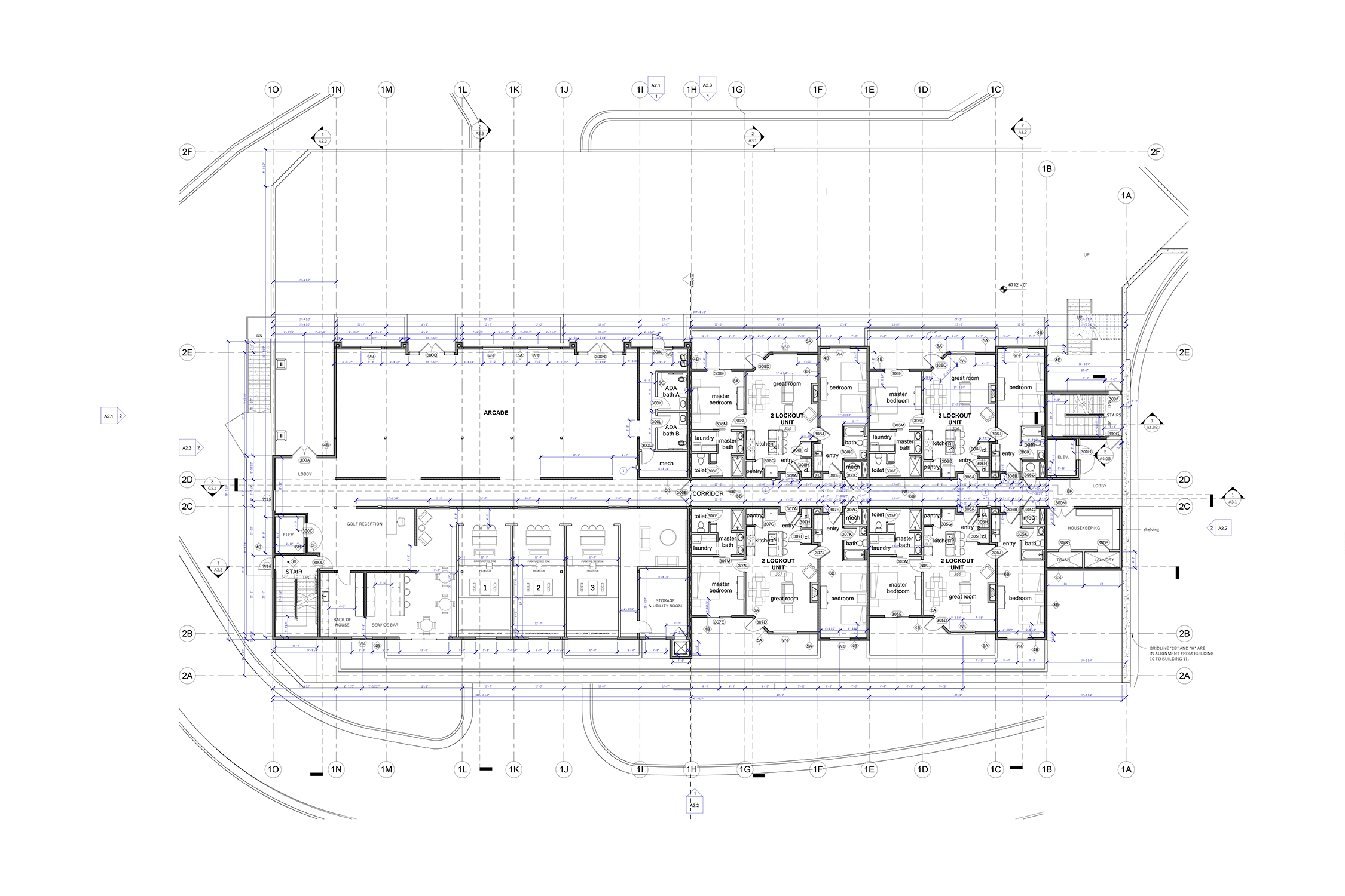
Black Rock | luxury condos
Park City, UT
221,250 SF
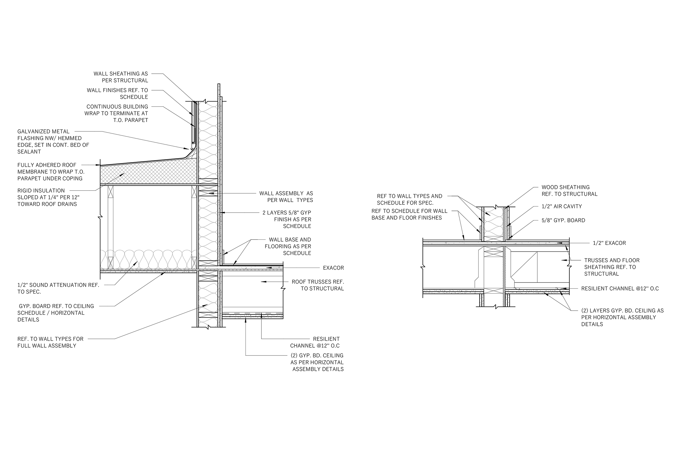
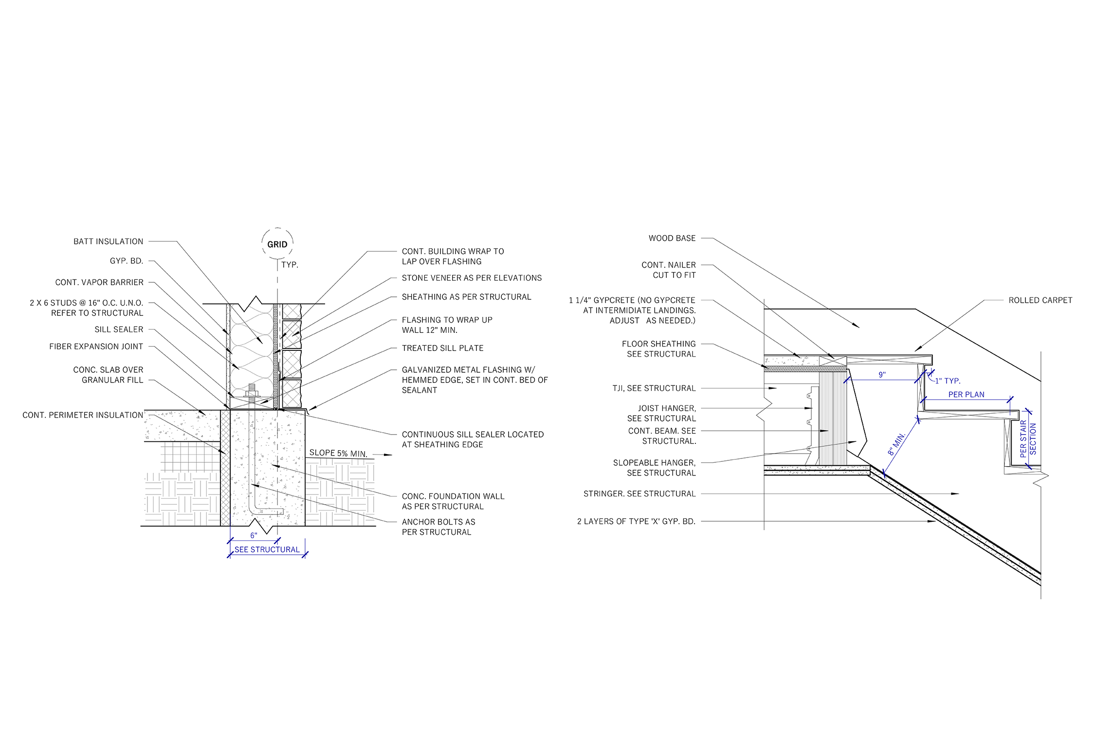
Big-scale projects need architects with expertise. They require cutting-edge technology for easiest real-time collaboration. Attention to detail.
We partnered with an architectural team to bring the vision of Black Rock Luxury Condos to life.
From early design development to the construction documentation phase, we collaborated seamlessly in the cloud, ensuring real-time coordination and high-quality standards.
Our role extended beyond the design stage; we remained an integral part of the construction process, applying cutting-edge technology to address challenges and adapt to on-site conditions efficiently.
Let’s make it happen together.
Take a look at our latest projects!
EXCEPTIONAL
INNOVATIVE
STRESS-FREE





