PCBC
Park City, UT
32,250 SF
You bring the ideas. We turn them into reality. We refine, develop, and shape with our broad design expertise and knowledge. Technology is used to make collaboration smoother and results even better.
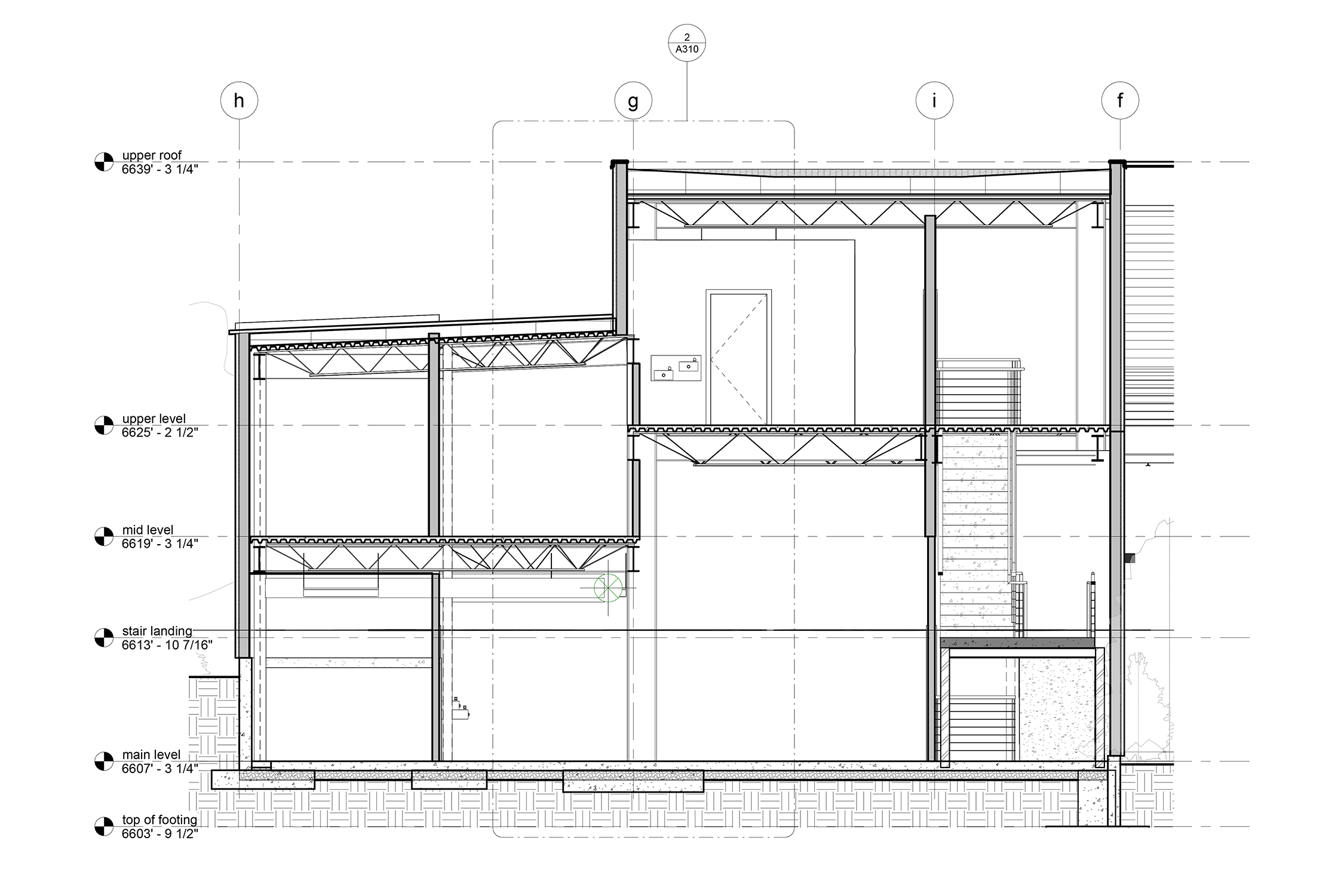
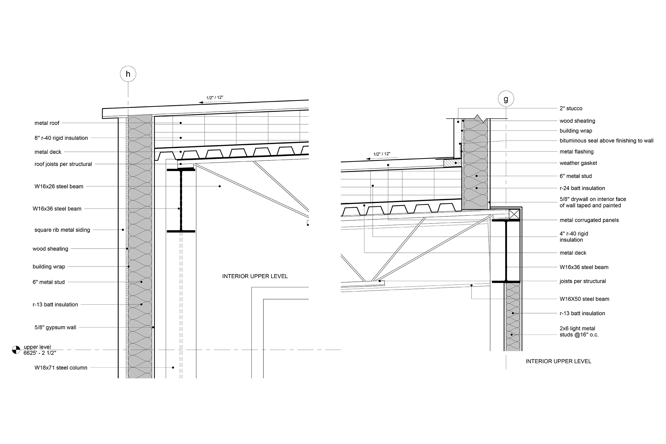
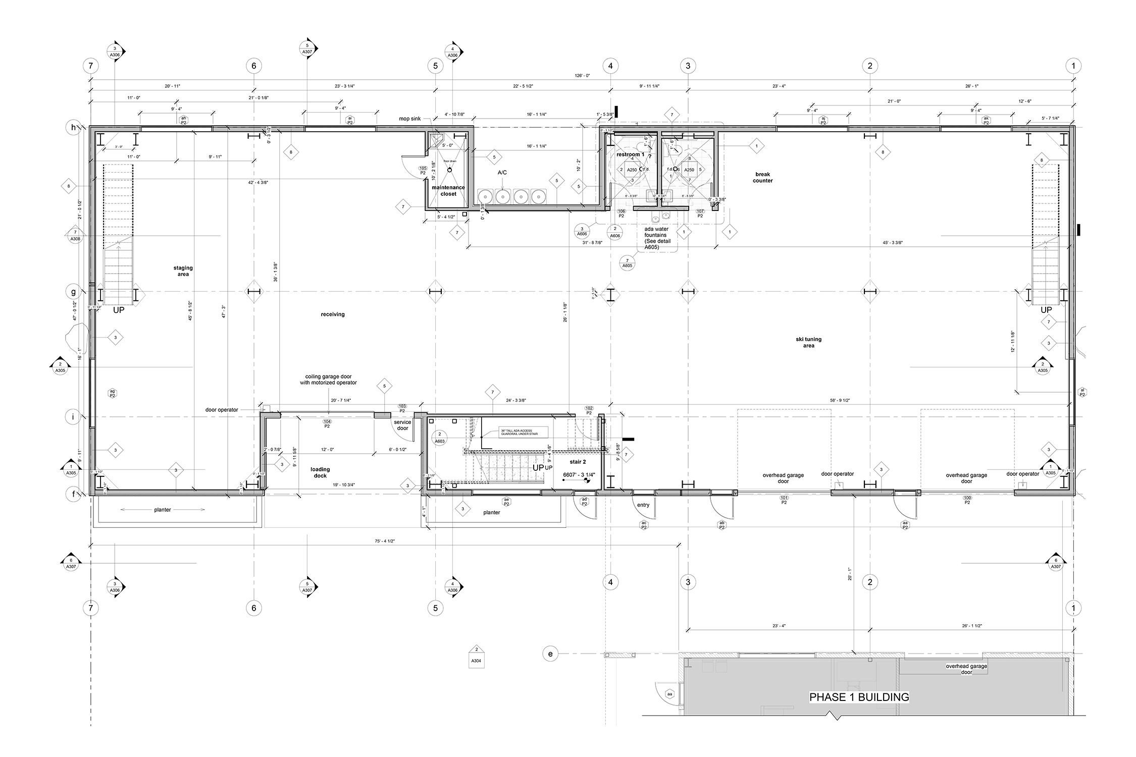
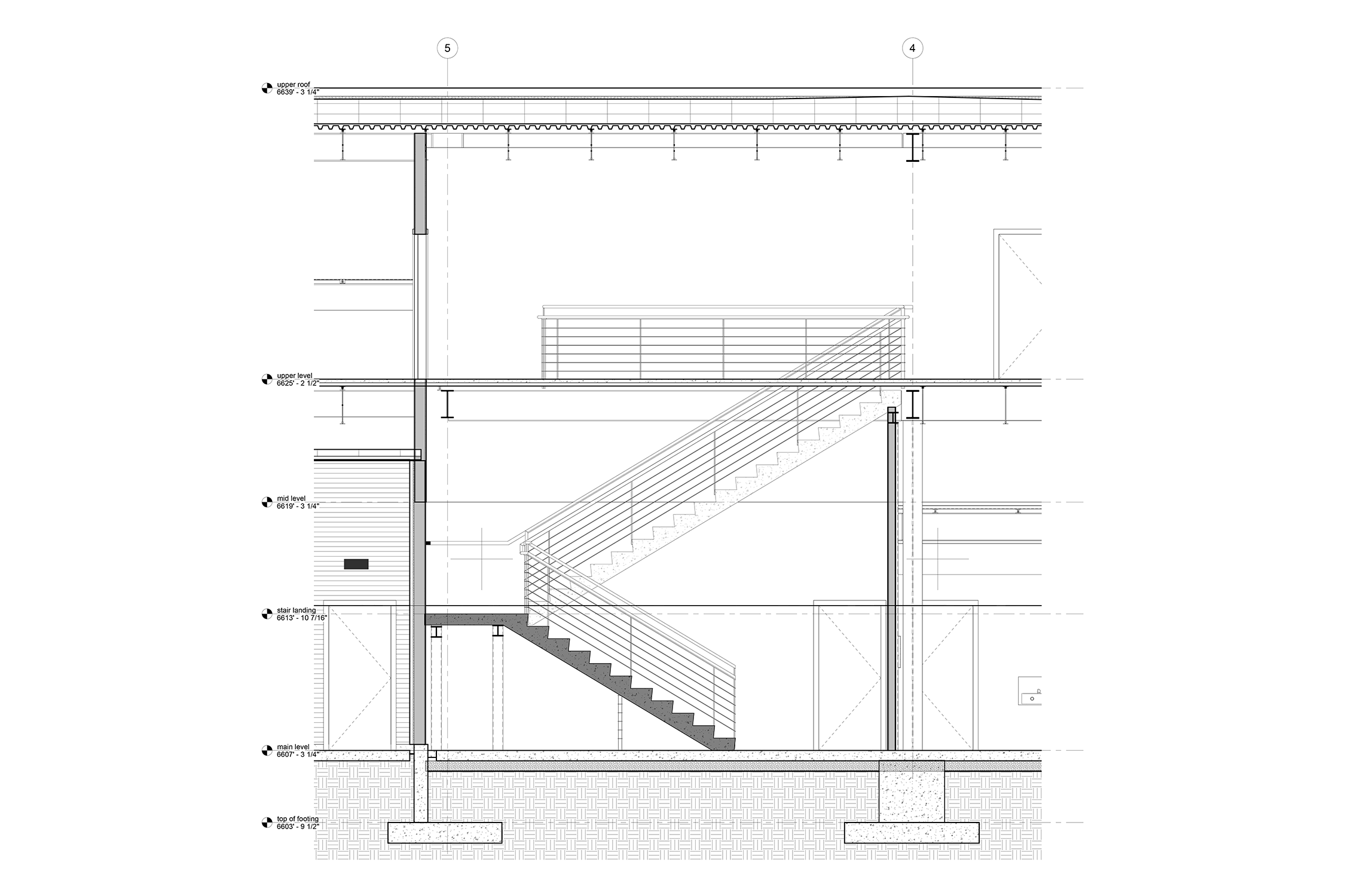
Prioritazing foot traffic flow, display areas, accessibility, and customer experience we worked on this As-Built Retail project from scratch. The structural design was a the challenge, with all the steel meticulously modeled and parametrized.
Our model reached high levels of detail, ensuring precision and quality throughout the construction documentation phase.
We bring your ideas to reality. You focus on what matters.
Our architects are tech-forward experts, helping you manage your workload.
Take a look at our latest projects!
EXCEPTIONAL
INNOVATIVE
STRESS-FREE




